Eingabehilfen öffnen

Zum Hauptinhalt springen
logo

Herr DI Franz Stefan Singer
Müllerstrasse 1
A-6020 Innsbruck

+43 512 552997
office@immo-expert.at

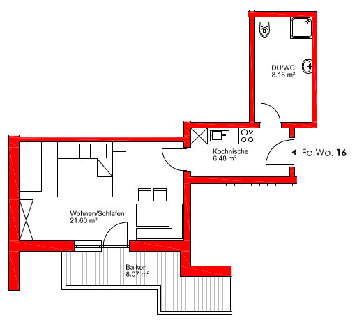
Kauf Ferienwohnung 16
Neustift im Stubaital

Werden Sie Besitzer einer erholsamen Ferienwohnung in Tirol! Das 36,26 m² große Apartment in Neustift im Stubaital bietet alles, was Sie für einen unvergesslichen Urlaub brauchen: Einen Balkon mit herrlichem Blick ins Tal, einen Kellerabteil für Ihre Ausrüstung und eine sonnige Lage für unbeschwerten Genuss. Vermieten Sie es und profitieren Sie von guten Renditen. Werden Sie Teil des Tiroler Bergpanoramas!

  • Wohnfläche:
    ca: 36,26 m²
  • Kellerfläche:
    ca. 4,16 m²
  • Balkonfläche:
    ca. 8,07 m²
  • Nutzungsart:
    Anlage
  • Eigentumsform:
    Wohnungseigentum
  • Mobiliar:
    teilmöbliert
  • Heizung
    Zentralheizung
Aktueller Verkaufspreis

VERKAUFT

Diese E-Mail-Adresse ist vor Spambots geschützt! Zur Anzeige muss JavaScript eingeschaltet sein.